お菓子と灯りの礼拝堂

SALE
価格:9,980万
間取:3SLDK(218.8㎡)
住所:福岡市城南区友泉亭
交通:友泉中学校前バス停 歩3分
地下鉄六本松駅歩24分

モダンな礼拝堂のような佇まい。開口を抑えたファサードの内側には、開放的な空間が広がっています。

アトリエ、雑貨ショップ、スイーツカフェ、住居…
今回は多目的に活用されている友泉亭の戸建をご紹介します。

オーナーはステンドグラスを中心に手がける照明作家でありパティシエとしての顔も持つ人物。若き日に修行されたというリヨンの街並みの記憶がところどころに感じられる建築です。

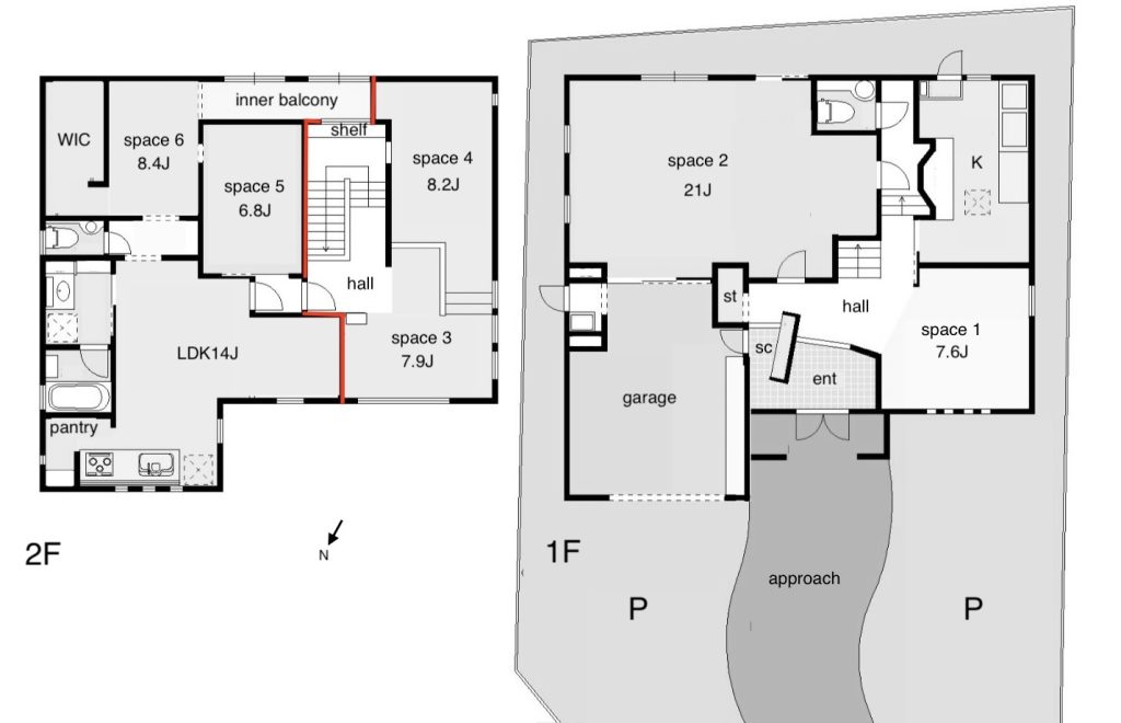
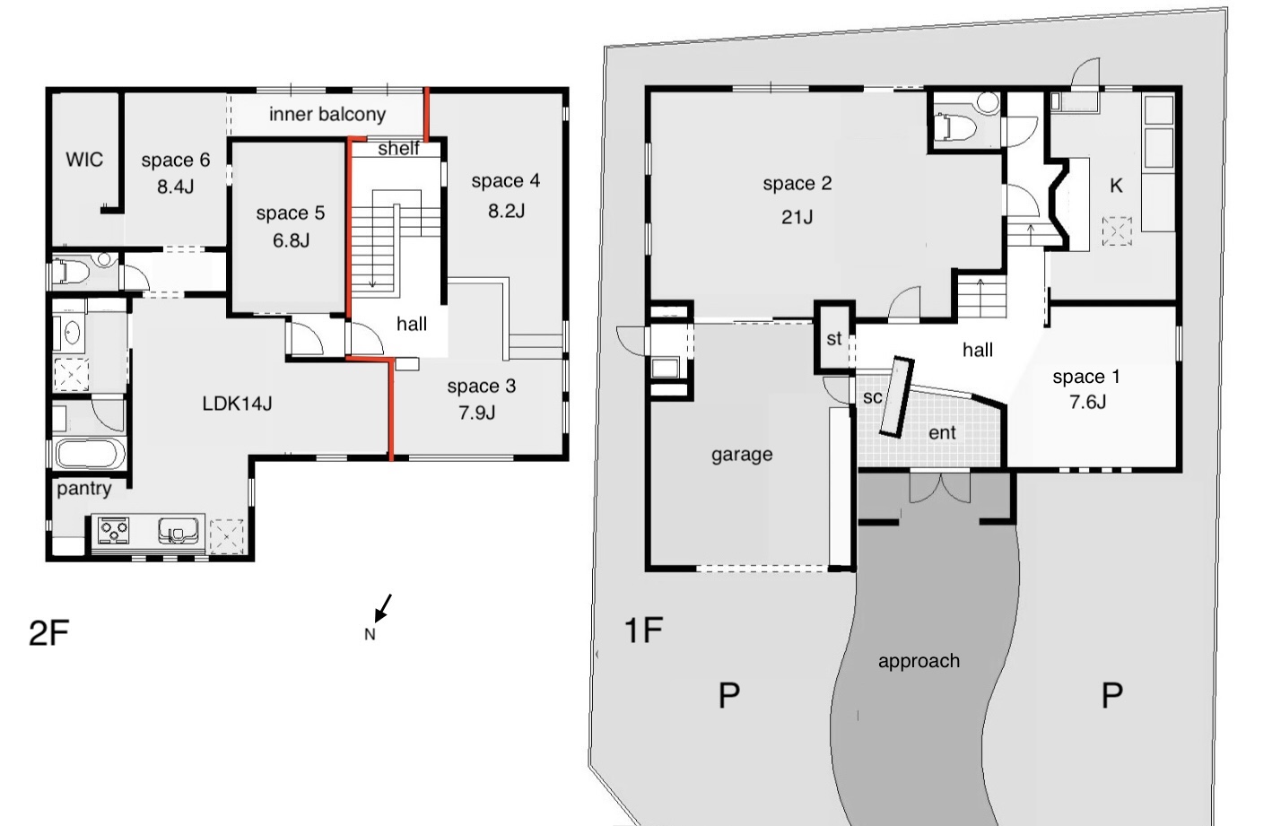
3SLDK(218.8㎡) ガレージ&外部に駐車場2台分
*建具がなくシームレスにつながっている空間が多いので、便宜上3SLDKとしています(SPACE1は玄関ホールの延長、SPACE2と6をそれぞれ一部屋、SPACE3&4をまとめて一部屋、5はサービスルームとして)

元々はオーナーがSPACE1を雑貨ショップ、2を照明のアトリエ、3&4をカフェ、5をサブのアトリエ、6を寝室として利用されていました。*2階の赤いライン左側がプラーベート空間
住宅部分はお引越しされ、現在は照明制作、雑貨ショップ、カフェの営業を継続中。

キッチンとトイレは2箇所あり、1階のキッチンは保健所より飲食店と焼き菓子製造の許可を取得済み。

開放的な玄関ホール。画像には写っていませんが、左手の壁の裏はシューズクローク。

右手の壁の奥はフリースペース。現在は雑貨ショップとして利用中。

無垢板が贅沢に使われた、質感の良い内装。

吹き抜けの階段で2階へ上がる途中に大きな棚。

ライブラリーのようで居場所にもなるゆったりとしたスペース。

2階入り口にも背の高い棚が。CDがずらっと並んでいますが、中段には照明スイッチ類が集約されています。随所に作品の照明が展示されていて、建物全体がギャラリーのよう。

窓際は見晴らしの良い特等席。ここSPACE3と4はカフェスペースとして利用中。
こちらでとても美味しいチーズケーキとコーヒーをご馳走になりました。

天井高があって開放的。ハイサイドライトからの控えめな外光と小さな照明たちが大きな空間に陰影を与えています。

階段ホールとSPACE3・4を緩やかに分けるアールの壁はオーナー自らデザイン。

イラストレーターで描いた等身大の曲線を壁に貼り、大工さんに仕上げてもらったのだそう。
ジャンルは違えど作家の追求心を感じます。

オーディオにもこだわりが…

スピーカーの配置や配線も緻密に計画されていました。

左は60代のオーナーが高校時代から愛用しているオープンリールデッキ。これでナベサダさんの伝説的なFM番組を欠かさず録音。貴重な音源は大切に保管されていらっしゃるのこと。それにしてもこんなオーディオを70年台当時の高校生が一人じめしていたなんて、何とも羨ましい。

右はVALOR のヴィンテージな石油ストーブ(2筒式)。素敵なデザインに私が食いついたら…

他にも続々とレアなストーブを見せてくださいました。

ちなみに、当戸建ては高気密住・高断熱宅で、空調は大型のエアコン2基をベースに、サーキュレーターやストーブを補助的にお使いのようです。太陽光発電付きの高性能住宅。

SPACE4。2階の一番奥の空間。窓際席のあるSPACE3からさらに数段上がった高さ。左の円い開口は視界に抜けを与えつつ、右手の小窓から外光を建物中心へと導く仕掛け。

ステンドグラスやビーズの照明たちが彩る非日常的な空間。夜間はきっと幻想的。

SPACE4の奥からSPACE3を見る。
勾配天井の下、高低差のあるフロアが緩やかにつながり奥行きを感じます。
大空間だけど妙に落ち着く居場所。こちらにベッドを置いて下をリビングのように使っても面白い。ドラマに出てくるような住宅。

また、上を客席に下でライブをやったら楽しそう。建物の周囲に余裕があり、また気密性の高いつくりになっているので多少の音を立てても問題ないかと。

LDK14帖。こちらはプライベート空間。カフェスペースから2枚のドアで仕切られています。

W2550のシステムキッチン。3口IHクッキングヒーター。写真には写っていませんがパントリー付。

アールの開口部の奥が寝室。建具無しで緩やかに分けられています。ここも奥行きと陰影を感じる絶妙なデザイン。

さらに奥はインナーバルコニーになっています。上部に昇降式の洗濯物干し。
窓の外は隣地の緑。長椅子を置いて読書など……一人時間を楽しめる居場所としても。

1616の浴室。

随所にアールのデザイン。

無垢板に馴染む塗装のテクスチャー。

質感の良い内装。

贅沢に計画されたアプローチ。前面に駐車場2台分。
左手のシャッターがガレージの入り口。奥のアトリエ(21帖)につながっています。

延床面積218.8㎡。なかなか大きな戸建です。ちょっとカスタマイズすれば様々な使い方が……ガレージハウスや2世帯住宅、住みながら1階を賃貸に出してもいいでしょう。妄想が膨らむ建築。

油山観光道路より1本入った閑静な住宅街。坂を上りはじめてすぐのあたりに建っています。

城南区ですがすぐ隣は中央区笹丘。六本松エリアまで徒歩20分。
徒歩10分圏内にイオンやコンビニ、ホームセンター、各種クリニック、公園などがあって生活便利。ヤマダデンキやユニクロもすぐ近く。(個人的に広島お好み焼おたふくがおすすめ)

空間を彩る照明やアールのデザイン、風合いのある内装、陰影、音楽、丁寧に手入れされたオーディオやヴィンテージストーブ、そしてブルーチーズの濃厚なケーキ……オーナーの追及心がギュッと詰まった建築でした。

現地はまだ利用中なので、ご案内は予約制とさせていただきます。

じっくりとご見学いただく為に、当社は予約制とさせていただいております。
営業時間/10:00~17:00 定休日/水曜日

OUTLINE

価格
9,980万
間取り
3SLDK(218.8㎡)
所在地
福岡市城南区友泉亭
交通
友泉中学校前バス停 歩3分
地下鉄六本松駅歩24分
完成
2020年7月
構造
木造
規模
2階建
駐車場
3台分(1台はガレージ)
建物面積
土地面積
設備
トイレ2箇所、 キッチン2箇所、温水洗浄便座、床下収納、システムキッチン、IHクッキングヒーター、オール電化、 太陽光発電システム、エアコン、電動シャッター *高気密・高断熱・高性能住宅
引渡し
相談
取引
一般媒介
情報掲載日
2025.11.6