街と緑とヴィンテージ
*リノベーション済
*ペット飼育可能 / 自宅兼事務所 応相談

赤坂公園から撮った写真。
今回は、けやき通りの素敵なヴィンテージマンションをご紹介します。
天神西通りまで徒歩15分程度の場所ながら、赤坂緑地方面に臨む緑豊かなロケーションです。

この見晴らし。南向きです。撮影時はあいにくの曇り空でした。

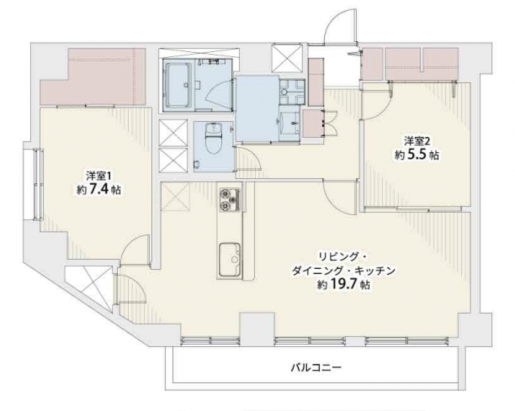
2LDK(79.50㎡)
開放的なLDK。南に向かってワイドスパン。食卓や大型のソファーをゆったりと配置できます。

日当たり良好。曇り空でしたがちょうど日が差し、ポカポカとしたひだまりができました。
室内は、水まわりを含めてフルリノベーション済み。
断熱や遮音効果のある内窓も設置されました。

W2400のシステムキッチン。食洗機&浄水器(混合栓一体型)付。
床や建具、キッチン等はグレイッシュなミディアムブラウン。壁天井は白くてプレーンなクロス仕上げ。
白×ブラウンの落ち着いたカラーリング。

キッチン前面の天井には、ちょうど良い位置にライティングレール&照明が。


リビングに面する5.5畳の個室。奥行きのあるクローゼット付。エアコン設置可能。
仕切りは2枚引き戸なので、オープンにすればリビングと連動して使えます。
この部屋は通路からも出入り可能。


リビングからの素晴らしい眺望。赤坂緑地方面を一望できます。
向かって左側にはお隣さんの窓が視界に入るため、通常は掃き出し窓の部分をレースのカーテン等で調整し、視線を和らげながら過ごすことになりそう。
人の出入りのない簡易な事務所だったら相談可能なので、自宅で仕事する方にもおすすめ。
気持ちよく働き、生活できるかと。


キッチン横の窓側にちょっとしたスペースが。丸椅子など置いて使える小さな余白。
奥の白いドアの向こうは物置のようになっていて、給湯器が設置されています。


キッチン裏の7.4畳の個室。ウォークインクローゼット付。
窓の向こうには隣のビルがあるので、ここはカーテン等で目隠しする生活に。
こちらにも内窓付。エアコンも設置可能。


W900の洗面台。洗濯パンの上部にキャビネット付。
浴室のサイズは1317。浴室暖房乾燥機付。追い焚きはついていませんが、保温機能の高い浴槽を採用。


トイレにもキャビネット付。

写真ではわかりづらいですが、玄関や通路の収納も充実。間取りでご確認ください。


絵になる集合住宅。


クラシックなホテルのロビーみたい。
ゆったりとした共用部。そして素晴らしい管理状態。


けやき通りがよく似合う、素敵なヴィンテージマンションです。
緑が茂る初夏や紅葉の秋もいいけど、冬空の下もなかなかの雰囲気。
天神西通りまで徒歩15分程度の場所に建っています。


バルコニーの先には赤坂緑地。
公園になっていて、森の中を散策できます。
ペットの散歩にも!
*小型犬・猫、合計2匹まで飼育可能
OUTLINE
- 価格
- 3,790万
- 面積
- 79.50㎡
- 間取り
- 2LDK+W(79.50㎡)
- 所在地
- 福岡市中央区赤坂3丁目
- 交通
- 地下鉄空港線赤坂駅12分
- 西鉄バス赤坂2丁目停 3分
- 完成
- 1974年11月
- 構造
- SRC造+一部RC造
- 規模
- 地上12階建
- 階数
- 6階部分
- 専有面積
- 79.50㎡
- 管理費
- 7,750円
- 修繕積立金
- 15,500円
- 組合費
- 1000円
- 設備
- 都市ガス、システムキッチン、食器洗浄乾燥機、浄水器、 温水洗浄便座、浴室暖房乾燥機、シャンプードレッサー、エレベーター、夜間オートロック、エレベーター
- 学校区
- 赤坂小 / 警固中
- 管理会社
- 東福互光株式会社
- 管理形態
- 全部委託
- 管理方式
- 日勤
- 用途地域
- 第一種住居地域・近隣商業地域
- 土地権利
- 所有権
- 引渡し
- 相談
- 備考
- 小型犬・猫、合計2匹まで飼育可能 / 事務所使用相談(承認・使用細則有)
- 取引
- 一般媒介
- 情報掲載日
- 2026.1.23













