城西アトリエ|ルーバル付

マットなライトグレーのクロスと合板の壁面。
ざっくりとしたアトリエのような空間。

城西アパート。
全8室、住宅をテナントへリノベーション中。
今回は、ルーフバルコニー付きの402号をご紹介します。

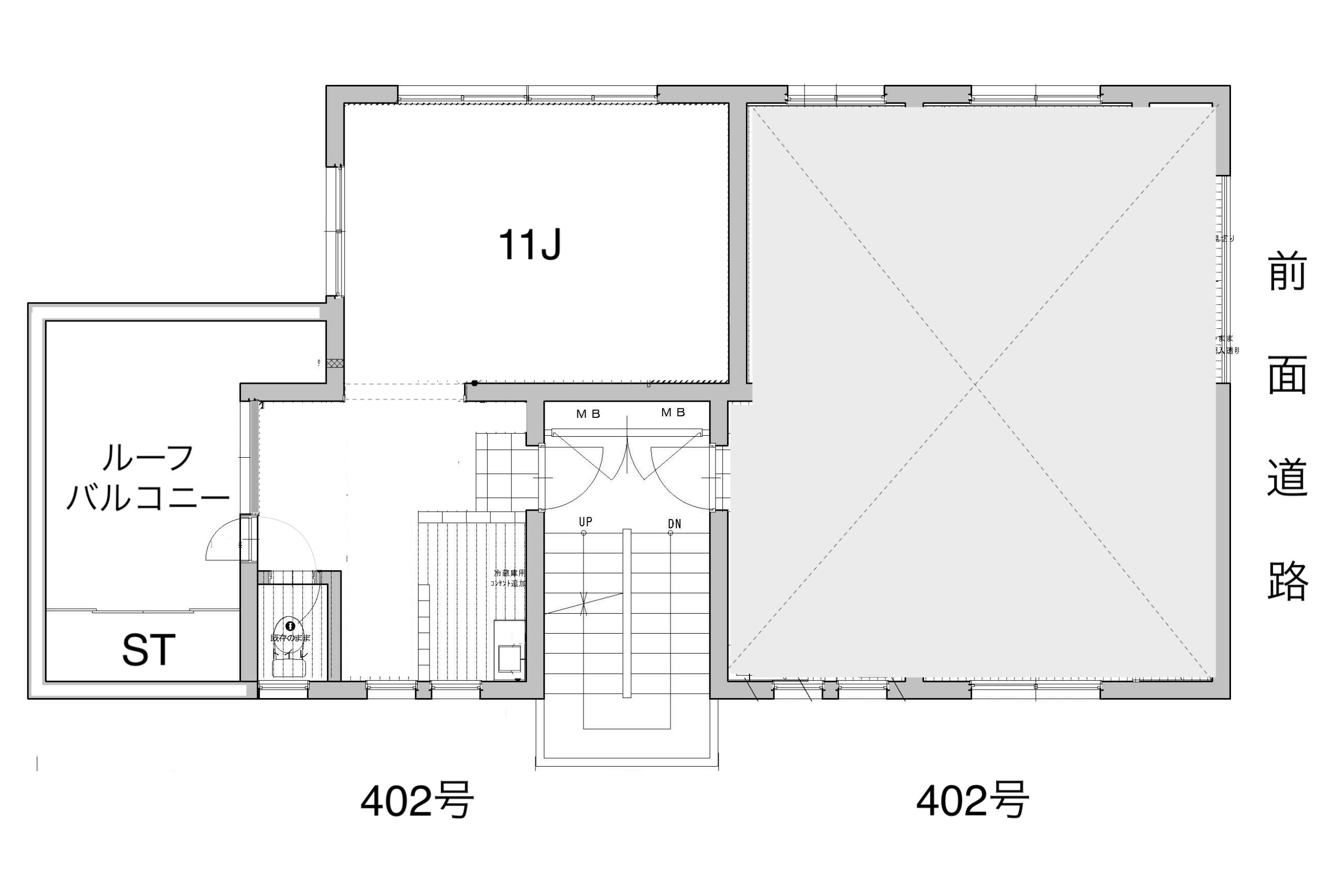
1R:31.02㎡
11畳と4畳くらいの空間が繋がるワンルーム。
ルーフバルコニー&外部収納付き。
オフィスやアトリエ、ギャラリー、予約制のサロンなどに。不特定多数の出入りがある店鋪は不可。

玄関を開けると広めの土間とホールが続き、その先には嬉しいオマケ…

6畳程度のルーフバルコニー。
*東を見る
この方向の視界は抜けていますが、北側(左側)には同じ高さのマンションがあるので、こちら側には何か目隠しを設けても良いでしょう。


バルコニー側から見ると可愛い平屋住宅のよう。
外部照明&収納付き。
何か楽しいことに使えそうな外部の居場所です。

11畳の空間。
壁の一部は合板仕上げで、ビス打ちも可能。
作品を飾ったり、棚を設けたり。
H型に走るライティングレールで、照明も自由に。

奥からルーフバルコニー側を見る。

外光が静かにまわりこみ、どこか優しげ。


既存の白いドアの中にトイレ。
水まわりもさっぱりとリニューアル済み。


玄関周りの4畳程度のスペース。
ルーフバルコニー側に少し奥まったスペースがあって、ここに薄型のカウンターを置けば小さなレセプションとしても使えそう。ビスを打てる合板と上部にレイティングレールがあるので、大きなアートを飾ることも。


内装・設備はほぼ新品にリニューアル済み。


でも、ところどころに既存が活かされていて、


センスよく、新旧ミックス状態。


玄関ドアも改装済み。
エレベーター無しの4階部分だけど、最上階なので屋上が近い!


共用の屋上も利用可能(規約有り)。4階建ながら見晴らし良好。
リラックスタイムはもちろん、気候の良い時期に仲間とフリマなどいかがですか?


現在、1階でフレンチのSalle a manger de Morimoto (サラマンジェ モリモト)さんが営業中。
2階以上ではピラティス、書のアトリエ、フォトスタジオなどの皆さまが活動されています。


思いのほか人通りのある裏通りに建っています。
商業地のそばだけど周辺は低層の住宅街でノビノビとした印象。
当ビルの企画・デザインを手がけるのは福岡リノベのパイオニア[リノベエステイト]さん
以前、代表/建築家の松山さんにインタビューしました
→ 福岡リノベクロニクル
今回のお部屋とリンクする内容なので、こちらもご覧あれ。
*202号の募集も開始しましました!
> 城西アパート|陰影礼讃
OUTLINE
- 間取り
- 1R:31.02㎡
- 家賃
- 99,000円(税込)
- 共益費
- 11,000円(税込)
- 所在地
- 福岡市早良区城西2丁目
- 交通
- 地下鉄空港線西新駅徒歩9分
- 地下鉄七隈線六本松駅19分/別府駅13分
- 完成
- 1973年
- 構造
- RC造
- 規模
- 4階建
- 階数
- 4階部分
- 礼金
- 3ヶ月
- 設備
- トイレ、流し台、モニター付きインタホン *エレベーター無
- 家賃保証
- 要加入
- 保険
- 要加入
- 備考
- 2年定期借家契約:再契約型
- 取引
- 媒介
- 掲載日
- 2026.3.20













