素がいい部屋
長丘のプレーンハウス、4階角のお手入れが間もなく終了。募集を開始します。

既存の建具や巾木等の木部がプレーンなライトグレー。ちょっと使い込まれていて、こなれた内装。

ピカピカが苦手な皆さまへ。
いたって日常的な雰囲気の、素がいい部屋です。

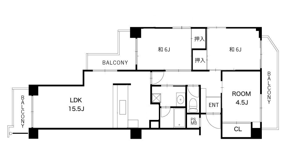
3LDK(74㎡)。15.5帖のLDKと独立性の高い個室が3部屋。全室に窓がありエアコンも設置可。デッドスペースが少なく機能的に使える間取り。
人の出入りがない自宅兼事務所であればSOHO利用応相談。自宅にワークスペースを確保したい方にもおすすめ。

カウンターにステンレス板が貼られた、ワイドな対面キッチン。
リビング側から見るとミニマルでインダストリアルな印象。おそらく完成当時からのオリジナル。


2400×1280のワイドなL型キッチン。賃貸としては規格外のサイズ。古くて可愛いレンジフード。


3STのソファやW1500の食卓を無理なく配置できる余裕のあるリビング&ダイニング。
南向き。視界右手に隣の建物が入るけど見晴らし良好。

モダンなデザインのシューズボックスやリビングドアも竣工当時のオリジナル。


通路に面する6畳の和室。大きな襖はプレーンでミニマル。
和室の天井もいい感じ。北欧ヴィンテージな照明など似合いそう。
バルコニー側には隣の建物があるので視界は良くないけど、2面の窓から外光が入りこみ、ぼんやりと明るくて落ち着く部屋。
通路の反対側にサニタリー。

既存の可愛いドアやガラスの欄間の向こうが洗面・脱衣所。

心くすぐられるパーツたち。塗装のドアは小学校のそれみたい。自然光がよく似合う。


ユニットバスは何年か前に交換された模様。洗面台・トイレもグッドコンディション。


賃貸の内装が全て貼り物の建材に変わってしまう少し前の既存たち。


何の変哲もないパーツたちに惹かれてしまう、素がいい部屋
高さがある木の巾木もナカナカいい…


角の6畳の個室。こちらもミニマルな印象の和室。
南に小窓、北側にバルコニー付き。どちらも見晴らし良好。


玄関側の4.5畳の個室。隣の6畳と同じく北向きのバルコニー。
北向きの個室は寝室にはもちろん、作業に没頭できるのでワークスペースにも。


余裕のある玄関まわり。個室のドアは引き戸なので、開放すれば緩やかに空間がつながります。風や光が通って心地よい。


丁寧に管理された共用部。外部は5年ほど前にリニューアル済。
建設関連の企業がオーナー。自社企画&施工の建築ということで、愛情たっぷり。
古いながらもメンテナンスが隅々まで行き届いており、素晴らしい住環境が保たれています。


北側の通りに面するアプローチ。


左は北側(個室側)の静かな通り。右は南側(リビング側)の大池通り。どちらも駐車場分、通りからセットバックして建てられています。
*周辺写真は以前撮った画像


長丘東公園(左)まで徒歩3分。長丘中公園まで徒歩5分。どちらも遊具のある大きな公園です。
電車沿線ではないけれど、周辺にはスーパーをはじめ、ドラッグストアやコンビニ、各種クリニック、銀行、郵便局、公園などのお店や施設が色々あって生活便利。また、空が広く、緑も身近で、のびのびと暮らせる住環境。学校や幼稚園等も近いので子育てにもおすすめ。
OUTLINE
- 間取り
- 3LDK(74㎡)
- 家賃
- 73,000円
- 所在地
- 福岡市南区長丘1丁目
- 交通
- 西鉄バス 長住三丁目バス停 徒歩3分
- 完成
- 1985年6月
- 構造
- 鉄筋コンクリート造
- 規模
- 地上6階建
- 階数
- 4階部分
- 駐車場
- 9,900円(税込)
- 礼金
- 2ヶ月
- 設備
- 浴室(追焚)、温水洗浄便座、シャンプドレッサー、インターホン、エレベーター、都市ガス、駐輪場
- 学校区
- 長丘小/長丘中
- 保険
- 要
- 備考
- 損保:要加入、2年定期借家契約(再契約可)
- 取引
- 媒介
- 掲載日
- 2026.1.28













