グレーでシックな
こちらはお申し込みとなりました。最新情報は、メールにてお問い合わせください

大橋駅より徒歩5分。
建築デザイナーが手がける1棟リノベーション(店舗,1K,1LDK,2LDKの全13室)、完成!
今回は、グレーを基調としたシックなデザインの1LDKをご紹介します。
2〜4階の角部屋3室。

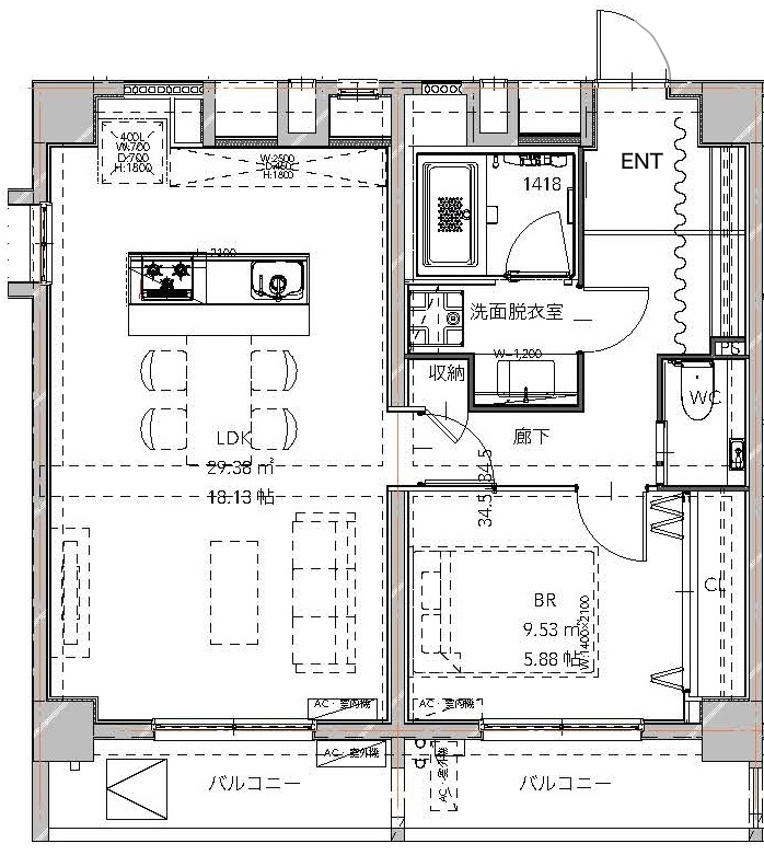
1LDK(61.83㎡ ):LDK18.1/洋5.8
アイランドキッチンが主役の開放的なLDKやサイズのある玄関周りなど、贅沢に計画された1LDK。


繊細な照明計画。
白×グレー×ブラウンからなるシックなデザイン。
オフィスやサロン、アトリエ等の利用も可能。料理教室にもぴったり。


家具をゆったりと配置できる南向きのリビング。
前面道路の向こうには、こちらより1階分高い5階建てのマンションが建っているけど、


距離があるので圧迫感はありません。
キッチン横の小窓いっぱいに隣地緑地のグリーンが…
水まわりも賃貸ではなかなか無い、ゆとりある贅沢仕様。


W2100のシステムキッチン。浴室は1418。


W1100の洗面台。トイレにも手洗い付き。


5.88畳の個室。壁一面のクローゼット付き。グレーの壁に白い建具や縁がすっきりと納まっている。


4階のフローリングはナチュラルで質感の良い、オークの挽板。
スイッチプレートもすっきりとしたデザイン。

開放的な玄関ホール。壁一面をブルーグレーのファブリックが覆っていて、

開けると稼働棚が設置された収納が姿を現す。ショーズクローゼットとしてはもちろん、

アウトドアの道具等も置けます。

このテクスチャーの組み合わせ、いかがですか?

光や風によって移ろう表情のあるデザイン。
リノベーション、ほぼ完成。
グレーでシックな1LDK、内覧可能となりました!
プロジェクトの概要やロケーションについては専用サイトより

別室の情報はセレクトルームの各ページでご覧ください。
- C_type|2LDK|61.8㎡
玄関が2箇所あるSOHO仕様 - E_type|1LDK|71.5㎡
緑に臨むペントハウス
- 1F_SHOP|01|30.9㎡:申込受付終了
- 1F_SHOP|02|30.9㎡:申込受付終了
- B_type|1K|30.9㎡:申込受付終了
- D_type|1LDK|34.4㎡ :申込受付終了
OUTLINE
- 間取り
- 1LDK(61.8㎡ )
- 所在地
- 福岡市南区向野2丁目
- 交通
- 西鉄大橋駅徒歩5分
- 完成
- 1984年
- 構造
- RC造
- 規模
- 2〜4階建
- 階数
- 5階
- 礼金
- 3ヶ月
- 設備
- インターネット無料、都市ガス、システムキッチン、温水洗浄便座、エアコン、EV、オートロック、宅配ボックス、
- 家賃保証
- 初回:賃料等月額費用総額の50% 月額保証料:1.5%非課税
- 保険
- 要
- 備考
- 事業利用の場合は賃料、共益費、礼金に消費税が加算されます
- 取引
- 媒介
- 掲載日
- *更新:2025.12.05













