ペットと暮らせるリノベ素材
今回はペットと暮らせる中古マンションをご紹介します。室内は嬉しい未改装。リノベーションの素材です。
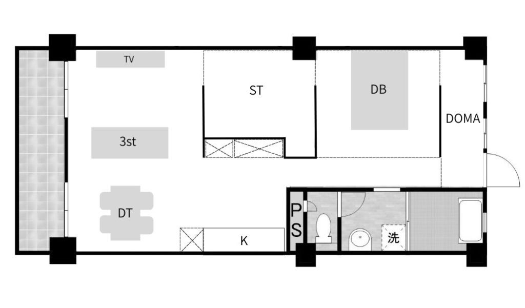
ざっくりとプランニングしてみました。参考にされてください。

開放的なワンルームながら空間の中心にあるST(収納スペース)が適度な死角をつくりだす、回遊性のある間取り。
*配管関係など目に見えない不明な箇所があるので、水まわりの位置は既存のまま
STを挟んで、バルコニー側(南)にLDK、玄関側(北)にベッドスペースを配置。
シューズクロークにも使える大きな玄関土間からはLDKとベッドスペースの両方にアクセス可能。
水回り以外は、あえて建具などを描いていません。お好みで点線部分にドアやカーテン、壁などを入れてみてください。

既存は2LDK(64.9㎡)。

見通しがよく、外部に向かって抜けのある空間。
室内はだいぶ使用感があるので、全面的なリノベーションをおすすめします。

日当たり&見晴らし良好。

前面はガゾリンスタンド。将来的に何か建つ可能性があるけど、万が一こちらと同じ規模が建ってもお部屋は最上階なので日当たりは確保されそう。



キッチンは10年選手くらいだけど、この機会にリニューアルしましょう。


和室の天井は活かして廻りぶちと一緒に白く塗装しても可愛い。右:先日完成した赤坂プロジェクトの例。


通路の素敵な照明は磨いて活かしたい。右:こちらも赤坂プロジェクトの画像。


玄関側、共用通路も見晴らし良好。油山観光道路沿いに建っています。


どことなく優しげ。古くてアジのあるマンション。


スロープも緩やかで優しさを感じる…


1階には整形外科。隣も病院で、徒歩5分圏内に各種クリニックが揃っています。
また、イオンをはじめ、スーパ、ドラッグストア、ホームセンター、コンビニなどが徒歩10分圏内に色々とあって、電車沿線ではないけれど、かなり生活便利なロケーション。
老後の暮らしにもおすすめ。
美味しいお店も…私のおすすめはお好みのおたふくとラーメン基峰、グリル千。


バス停まで20メートル弱。目の前と言っても良さそうな距離。博多駅・天神エリアまで結構本数あり。
手頃なリノベーションの素材をお探しの皆さま、いかがでしょうか?
ペットも一緒に暮らせますよ!
*飼育可能なペットの種類は現在確認中
OUTLINE
- 価格
- 1,090万
- 面積
- 64.9㎡
- 間取り
- 2LDK(64.9㎡)
- 所在地
- 福岡市城南区長尾1丁目
- 交通
- 西鉄バス長尾1丁目停1分
- 完成
- 1975年7月
- 構造
- RC造
- 規模
- 6階建
- 階数
- 6階部分
- 駐車場
- 近隣空きあり*2025年12月現在
- 管理費
- 7,000円
- 修繕積立金
- 10,000円
- 町費
- 300円(月額)
- 設備
- 都市ガス、給湯、シャワー、キッチン、トイレ、浴室、追焚機能、エレベーター
- 土地権利
- 所有権
- 引渡し
- 相談
- 情報掲載日
- 更新:2026.1.10













